
Думаете, вы знаете все о футуристическом логове купертиновцев? Как бы не так. Недавно Apple обнародовала новые панорамы, схемы и планы «космического» кампуса, который будет построен к 2016 году. Поверьте, там есть на что посмотреть. Ранее мы уже неоднократно писали об этом, но история обросла новыми подробностями. Предлагаю рассмотреть все в деталях.
Отсюда нам открывается неплохой вид на главное здание кампуса.

А вот другой ракурс. Замечаете темные вытянутые здания вдалеке? Они тоже являются частью кампуса. Мы вернемся к ним позже.

Крыша здания стала заметно темнее: теперь она покрыта солнечными батареями, которые будут установлены по всему периметру. Питание корпусов будет осуществляться автономно.

Карты кампуса
Пришло время внимательно изучить остальные строения. Первое изображение поможет нам во всем разобраться.

Круглое офисное здание в представлении не нуждается. В левом верхнем углу расположен огромный современнейший фитнес-центр. Две продолговатых постройки внизу — это парковки для сотрудников. В квадратных зданиях в правой нижней части изображения размещен отдел исследований и разработок, а также отведено место для запасных парковок. Белое круглое сооружение внизу — это вход в Аудиторию. Все правильно, вход, но об этом чуть позже.
Кампус в разрезе. Выглядит довольно внушительно.

А теперь посмотрите на детализированные планы. Это в лишний раз доказывает насколько тщательно Apple относится к мелочам. Полагаю, что только на планирование было потрачено несколько миллионов долларов.


Главное здание
Здесь вы можете наблюдать часть чертежа главного здания. На нем изображен огромный кафетерий, офисы и комнаты.

Следующий чертеж показывает нам гигантскую кухню, которая находится этажем ниже кафетерия и служит для его обслуживания.

Детальный взгляд на кафетерий. Чуть позже мы еще раз к нему вернемся.

Посмотрим и на главный вход. Обратите внимание на огромный вестибюль. Apple рассчитывает на множество посетителей.

Примерно так все должно выглядеть после завершения работ.

Настало время посмотреть на офисы в вертикальном разрезе. Все продумано до мелочей. На двух нижних ярусах — парковки, которые занимают последние подземные этажи по всему периметру здания.

На следующем чертеже — подробный обзор всех компонентов, их которых будет состоять крыша.

Вернемся к кафетерию. Вот его чертеж в вертикальном разрезе.

А так все должно выглядеть в реальной жизни после завершения строительства.

Перед тем как мы перейдем к рассмотрению Аудитории, хочу показать вам еще один чертеж подземная парковки.

Аудитория

Это здание по праву можно считать самым необычным сооружением во всей архитектурной композиции кампуса. Большая стеклянная «прихожая» проведет вас к лифтам и лестницам, которые ведут на подземные этажи. Все правильно, Аудитория находится под землей. Точнее, ее основная часть. Там будут расположены места для 1000 человек, сцена, офисы, переговорные комнаты, а также склад.

Чертеж в вертикальном разрезе.

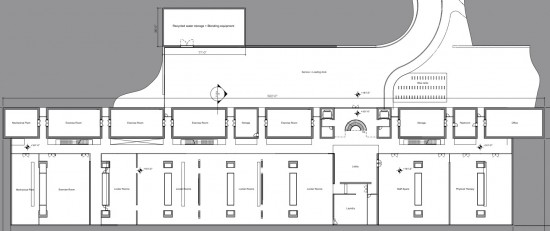
Фитнес-центр
Как и все сооружения в кампусе, фитнес-центр состоит из подземных и надземных этажей. И множества комнат.
Надземный уровень:

Подземный уровень:

Парковочное здание
Вот мы и добрались до тех странных черных зданий, о которых говорили в начале обзора. Они являются огромными парковками для сотрудников Apple вместительностью в 1500 автомобилей. Все этажи выглядят одинаково. Да и чему там отличаться? Поэтому я прилагаю чертеж.

Все еще сомневаетесь в том, что новый кампус Apple – отличное место? В завершение давайте посмотрим на несколько изображений.
Так должна выглядеть поляна перед главным зданием кампуса:

Беговая дорожка будет поддерживать сотрудников в форме:

Последний взгляд на здание и растительность, которая будет окружать его:


Хотел бы я в строительстве этого чуда поучаствовать :(
@Игорь Суворов, Строить?
@alekseyshubert, ну я инженер-архитектор, но готов там хоть стекла мыть – лишь бы за процессом понаблюдать :)